一戸建
梅ヶ枝町戸建

4万円
共益費/管理費
2,000円
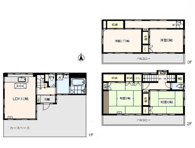
- 間取
- 6DK
- 敷金
- 1ヶ月
- 礼金
- 0.5ヶ月
- 築年月
- 1971/07(築54年)
- 面積
- 86.67m²(26.21坪)
- 階建
- 2階建
- 建物構造
- 木造
北海道小樽市梅ヶ枝町
函館本線小樽駅まで バス11分
桜台1丁目貸家

22万円
共益費/管理費
-
- 間取
- 4LDK
- 敷金
- 2ヶ月
- 礼金
- 1ヶ月
- 築年月
- 1962/07(築63年)
- 面積
- 95m²(28.73坪)
- 階建
- 2階建
- 建物構造
- 木造
練馬区桜台1丁目
西武池袋線桜台駅まで 徒歩2分
都営大江戸線練馬駅まで 徒歩10分